Numérotation :
¬ Bmx : 76xxx
¬ B(D)x : 75xxx
Diagramme·s : GR – JR – LR
Pression Cylindre :
¬ Bmx : 2,6 bar / 3,3 bar (R)
¬ B(D)x : 3,2 bar
Frein Direct : 3,8 bar
Basse Tension : 24V
Masse ( Freinée ) :
¬ Bmx : 86 T ( 106 Tf / 118 Tf (R) )
¬ BDx : 64 T ( 87 Tf )
¬ Bx : 65 T ( 88 Tf )
S'annoncer au gestionnaire local de l'installation.
¬ Vérifications préalables
- Numéro d'identification de l'engin moteur
- Présence de la Caténaire
- Présence d'étiquette de rebut / avarie
- Absence de SMR / Plaquette d'interdiction
- Livre de bord de chaque engins moteurs
- Mise à PLAT 1
Réveiller la HVR au Carré 2x.
Si pas d'Air, entrer à l'urgence.
-
MISE À PLAT
– Mode Panton 5°/35°
– Couper Lumières dans la Rame
– Fermer les portes
– Couper LT, DUR & Baisser Pantographes
– Mettre le Neutre
– Phares sur "Auto"
– Couper le GSM-R
– Étreindre BISD
– Sortir dans les 5' en utilisant le Carré # ↩
¬ Vérifications extérieures
Extrémité
- Pare brise / Essuie-glace / Feux
- Robinets CA/CFA ouverts
- Robinets de maintenance fermés
- Attelage GF (Flèche jaune, Joints, ...)
- Brosse Croco
Côtés
- Carré vidange des suspension en position
- Bogies
- Partie visible des Pantographes
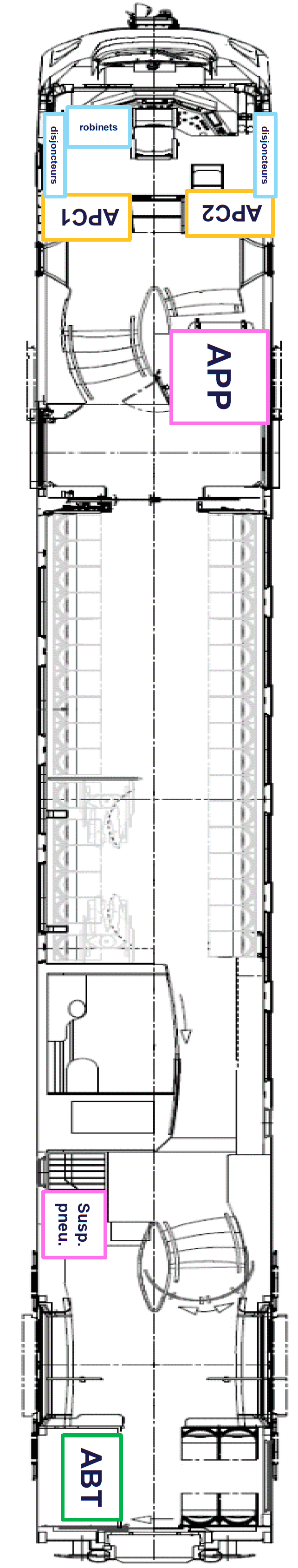
- BDx : Robinet d'isolement distributeur
- BDx : Poignée alternateur R+Mg
Connexions Rame
- Boyaux & Câbles
(CA, CFA, EP, LT, 2x Échange d'énergie)
¬ Mise en Service
- Réveiller Batterie & Entrer (2 x O)
- Vérifier Basse Tension ≥ 21 V
- Réveiller Voitures (Bouton Vert APC2)
- Vérifier Livre de Bord & Allumage Écran
- Enclencher la BISD
- Attendre MUX & autorisation levée pantographe
- Choix AC/DC + Lever Pantographe
- Fermer DUR
- Attendre Charge Bat. & Enclencher LT
- Lever le Second Panto. pour vérification (TDD_A)
Si la mise en service est impossible,
remettre à Plat & poursuivre la visite intérieure
¬ Visite intérieure HVRm
¬ Essais & Vérifications 1/2
À effectuer dans les CC aux extrémités.
- Levée des pantographes
- Fermeture DJ / DUR 1
- Vérification production d'air
- Vérification charge batterie
- CA ±9 bars (Pression de régime)
- Première alimentation complète 2
- Maintien à l'Arrêt
- Contrôle fonctionnement Lampes 3
- Contrôle Étanchéité CFA 4
- Essais Robinets de Freins 5
- Vérifier Indicateurs Extérieurs (Serrage/Desserrage)
- Vérifier état Pantographe & Feux
- Essai Frein HP 6
- Essai Traction & Coupure Traction 7
-
Avant de Fermer le Disjoncteur :
Attendre 10" après la levée du pantographe afin de s'assurer d'un contact stable avec la caténaire. ↩ -
Première Alimentation + Complète
– Surcharge CFA 5,4 bars (Compter 20" après extinction indicateur de fuite)
– Évacuation Surcharge 3'
– CFA 5 bars Stabilisés ↩ -
Essai Lampes Frein
· Constater l'allumage des lampes : Serrage/Desserage Incomplet, Frein EP.
· Vérifier également le bon fonctionnement des lampes lors des essais de robinets. ↩ -
Étanchéité CFA
· Alimenter la CFA à 5 bars Stabilisé
· Activer la fonction Neutre / Isoler le manipulateur
· Chute MAX autorisée 0,3 bar/minute ↩ -
Frein Automatique
· Inverseur dans le Sens de Marche
· Serrage MAX ( –1,5 bars CFA )
· Check lampes Serrage Incomplet
· Observer manomètres CFA & Cylindre
· Test non ré-alimentation
· Couper Inverseur
· Sortir observer les indicateurs Rouge
· Desserrage complet
· Check lampe Desserrage Incomplet
· Observer manomètres CFA & Cylindre
· Sortir observer les indicateurs Vert
Essai Frein EP
· Activer EP
· Serrage / Desserrage complet
· Désactiver EP
Frein Direct
· Serrage Max progressif
· Observer manomètres Cylindre
· Desserrage complet ↩ -
Essai Frein HP:
· Inverseur dans le Sens de Marche
· Desserrer le frein d'Immobilisation (si nécessaire)
· Effectuer un FU
· Observer la pression au Cylindre ↩ -
Essai Coupure auto de la Traction
· Inverseur dans le Sens de Marche
· Dépression 1 bar CFA
· Tester l'absence de traction ↩
¬ Essais & Vérifications 2/2
À effectuer dans les CC aux extrémités.
- Essai VA 1
- Essais TPS (ETCS / TBL1+) 2
- Essai GSM-R 3
- Desserrage Frein d'Immobilisation
- Inscription “VK·PC” au Livre de Bord
- Inscription “AW·VA” à la Fiche Suiveuse
-
Test AW/VA
· CFA 5 bars
· Inverseur dans le Sens de Marche
· Entendre "BIP" avant d'Armer la VA
· Vérifier le délai de déclenchement ±55"
· Constater FU après 3 à 5"
· Tester l'Absence de Traction
· Remettre l'Inverseur à 0 ↩ -
Test ETCS
· Reset ETCS
· Menu “Outils” > Test FU ↩ -
Test GSM-R :
· À l'allumage, “Audio Test” s'affiche
· Appuyer sur “OK”
· Décrocher et s'assurer qu'on s'entend en parlant dans le combiné.
· Appuyer sur “OK”
· Appuyer sur S14 pour lancer le Test Automatique ↩
- INMAIN
- IDREM
- Mise à Plat
- Abandon en Service
- Mise en Véhicule (HV)
¬ Mise en INMAIN
À effectuer depuis la CC
d'où la conduite sera assurée par la suite.
- Mise en Service de la CC & Auxiliaires
- VK·PC + AW/VA si nécessaire
- Allumage des feux prévus en tête & queue
- Mode Planton (5°/35°) On
- GSM-R sans données train
- ETCS en mode Stand By
- FIL On
- Frein de Parking On
- Rédaction TC612
- Verrouiller Portes & Fenêtres
¬ Prise en charge IDREM
- Vérifier TC612 & joindre au M510e
- Vérifier N° Train au TC612
- AW/VA postérieure à la VK-PC
- FIL Off
- Desserrer Freins d'Immobilisation des HL et AM/AR repris au TC612
- Essais de fonctionnement du frein au changement de CC
- Essai de Traction
- Vérifier Feux
- Essai de Frein Complet
- Réception TC286
- Encodage ETCS
¬ Mise à Plat
- Mode Planton (5°/35°) On (APC2)
- Éteindre éclairage (APC2)
- Frein de Parking On
- Sortir du GSM-R & Éteindre
- Déclencher LT & DUR
- Baisser Pantographe
- Neutre On
- Désactiver BISD
- Constater Vidange CFA + Non-réalimentation 30''
- Verrouiller Portes & Fenêtres
- Visite Extérieure (Panto, Bogies, Attelages, Sablière)
¬ Abandon en Service
- Frein de Parking On
- FIL On
- Mode Planton (5°/35°) On
- Éteindre éclairage
- Verrouiller les portes
¬ Mise en Véhicule (HV)
- Mise à Plat
- Frein de Parking Off 1
- Vérifier Indicateurs Extérieurs
ou Essai de Roulage - Isoler Coupleur Électrique GF
ou Débrancher Cable UIC - HL=HV au Livre de Bord si Anomalie MR
- Placer 2 Lanternes de queue
-
– BT Suffisante :
Tourner le dispositif au # sur le long-pan
ou Bouton Vert armoire APP2
– BT Insuffisante:
Isoler Frein de Parking (APP2)
& Actionner les 6 tirettes extérieures d'un côté ↩
- Élimination / Remise à 100%
- Manque de Basse Tension
- Reset Cabine de Conduite
- Reset CMD
- Reset Réseau IP
- Robinet Frein Auto. Défectueux
¬ Élimination Automatique
- Couper Traction
- Déclencher LT
- Déclencher Maintien DUR
- Réarmement DUR pendant 10"
- Enclencher Maintien DUR
- Réarmement DUR 2"
- Constater le nombre réduit de moteurs
¬ Remise à 100%
- Couper Traction
- Déclencher LT
- Déclencher Maintien DUR
- Baisser Pantographe
- Réarmement DUR pendant 10"
- Lever Pantographe
- Enclencher Maintien DUR
- Réarmement DUR 2"
- Constater le nombre réduit de moteurs
¬ Manque de Basse Tension
Entre 18V & 21V
- Tourner CEE
- Activer BISD
- Mettre en Service et Laisser charger 10'
- Couper BISD
- Remettre CEE en position Normale
Moins de 18V
- Essayer de Mettre en Service
- Appeler un dépanneur si impossible
¬ Reset Cabine de Conduite
- Déclencher LT & DUR
- Baisser Pantographe
- Couper BISD
- Attendre extinction LED TDD_A
- Remettre en service
¬ Reset CMD
Lorsque il est impossible de sélectionner le niveau ETCS souhaité.
- Couper DJ CMD 10" (APC1 — JD-F17)
- Reset ETCS
¬ Reset Réseau IP
- Déclencher LT
- Attendre quelques secondes & Enclencher LT
- Vérifier init. réseau IP au TDD_B (Icône Train)
Sinon
- Désactiver CC
- Vérifier les câblots IP
¬ Robinet de Frein Auto.
Mode BackUp
- Immobiliser le convoi sans FIL
- Tourner le Robinet sur la centrale (APP3)
- Essai de fonctionnement
Le train peut circuler jusqu'à la fin de la journée.
Fonctions Grand Débit, FIL & Surcharge inopérantes.
CFA 5,2 bar permanent au desserrage.








